各供应商;
为优化本校学生公寓,以满足学生生活需求,改善学生宿舍居住条件,现针对学生公寓家具采购项目方案开展需求及市场调查。诚邀有意向的供应商积极参与并回函响应,相关事项如下:
一、项目名称:四川工商职业技术学院学生公寓家具采购项目
二、项目内容:
序号 |
产品名称 |
数量 |
主要采购要求及质量要求 |
1 |
●三人位公寓床(含实木床板) |
902套 |
一、公寓床产品主要配置要求。采购的两人位、三人位及四人位公寓床,每套应至少包含以下配置:上床铺、下置学习桌柜、椅子、置物架、棕垫及实木床板。相邻两套公寓床之间应设置走梯或爬梯作为共用上下通道。配置需满足每人独立使用以下设施:1个储物柜、1把椅子、1张学习桌、1张棕垫,并具备存放1个行李箱及零星物品的置物空间。 二、旧储物柜采购要求。共计274套,其中包括272套三联储物柜及2套二联储物柜。需满足820人每人独立使用1个储物柜。 三、旧床具爬梯改造项要求。爬梯结构须与旧床具实现牢固、可靠连接,设计应在确保安全性的基础上,充分考虑学生上下床的安全与便利,做到结构可靠、使用方便。提供爬梯位置改造透视效果图。 四、设计要求。家具各产品组合应实现房间空间利用率最大化,在满足规定床位尺寸的前提下,着力提升学生储物功能,兼顾书籍、衣物、鞋类、行李箱等物品的存放需求。可通过增加储物柜体数量、扩大柜体空间,并优化存放与拿取的便捷性来实现。 五、房间布局每种方案附件要求。 1、房间布局尺寸平面图 2、房间俯透视效果图 3、房间侧透视效果图 4、储物柜内部空间透视效果图 5、房间全景效果图(非必须) 6、每种方案每项效果图至少一张至多三张 六、储物柜及爬梯改造每种方案附件要求。 1、储物柜位置改造透视效果图 2、储物柜内部空间透视效果图 3、每种方案每项效果图至少一张至多三张 七、主要质量要求。所有核心部件应至少满足如下国家或行业标准。 1、GB/T 3325-2024 金属家具通用技术条件 2、QB/T 4767-2014 家具用钢构件 3、GB/T 35607-2024 绿色产品评价 家具 4、QB/T 4371-2012 家具抗菌性能的评价 5、GB/T 10125-2021 人造气氛腐蚀试验 盐雾试验 6、GB/T 11253-2019 碳素结构钢冷轧钢板及钢带 7、GB 17927-2024家具阻燃性能安全技术规范 8、GB 18584-2024家具中有害物质限量 9、QB∕T 2741-2013 学生公寓多功能家具 |
2 |
●四人位公寓床(含实木床板) |
2套 |
3 |
●两人位公寓床(含实木床板) |
90套 |
4 |
●旧储物柜更换 |
274套 |
5 |
●旧床具爬梯改造 |
1597个 |
6 |
●置物架 |
1162个 |
标注“●”项为本项目核心产品,上述标准如有更新请以最新标准为准。 |
三、调研回复内容:宿舍家具设计方案及效果图附件,包含床铺、学习桌、柜,含椅子,衣柜等。请潜在供应商提供每个类别不少于1种参考设计样式,也可同时提供相关的技术参数及要求。
四、回复方式:
(一)线下提交:宿舍家具设计方案及效果图附件以及其他设计稿等材料扫描盖章版密封盖章后递交至四川工商职业技术学院6号学生公寓学生公寓管理中心办公室。
(二)线上提交:宿舍家具设计方案及效果图附件以及其他设计稿等材料扫描盖章版电子版,以电子邮件方式发送至指定邮箱(lionellee0523@163.com)。
(三)回复期限:自公告发布之日起3个工作日内提交设计方案。
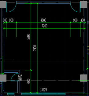
五、学生公寓房间尺寸图(所有房间层高H=3400mm)


4人间房间布局 4人间房间布局
(使用2人位公寓床) (使用4人位公寓床)

6人间房间布局 9人间房间布局
(使用3人位公寓床) (使用3人位公寓床)
六、旧储物柜更换、旧床具爬梯现状图

旧储物柜更换现状(6人间)

旧床具爬梯现状图(6人间)
七、其他
递交材料需注明供应商名称、联系人及联系电话,同时附上营业执照及法人身份证复印件并加盖单位印章。采购单位无论是否采纳相关意见,均不影响供应商参与后续采购活动,且对供应商所提意见建议不另行书面回复。